建筑物上部结构采用框架结构或单层排架结构承重时,基础常采用圆柱形和多边形等形式的独立式基础,这类基础称为独立式基础,也称单独基础。独立基础分三种:阶形基础、坡形基础、杯形基础。下面来看怎么在cad中绘制独立基础平面图。
cad中绘制独立基础平面图教程
1、首先打开一个绘制好轴网的图纸,然后点左侧工具栏中的基础楼梯,让农户点击布置基础。

2、在弹出的窗口中首先设置基础的标注位置,标注方式和编号的标注方式以及基础的编号。

3、然后我们设置基础的边长,如果需要还需要设置偏心距等,完成后点击确定完成设置,进入绘制。

4、在绘图空间中点击轴网需要绘制基础的部位点击左键绘制基础。

5、点击后绘制完成,如果是相同的基础油多个,我们可以继续点击来绘制;如果不同我们重复第二步,设置后继续绘制。

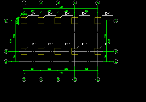
6、这是绘制好的独立基础平面图。

教程结束,以上就是关于独立基础平面图怎么画?cad中绘制独立基础平面图教程的全部,希望大家喜欢!!更多精彩,尽在武林网网站!
新闻热点
疑难解答